•  

Trezorové dveře TD 70 BT 1 levé mechanický kombinační zámek

Kód produktu: NA020965
Výrobce: T - SAFE s.r.o.
Na objednávku
Informace k dopravě

Přeprava pouze nadrozměrnou dopravou!

71 087,50 CZK s DPH / ks
58 750,00 CZK bez DPH
MJ: ks

Trezorové dveře TD 70 na mechanický kombinační zámek

Vlastnosti:

• Jednokřídlé certifikované dveře v bezpečnostní třídě 1 určené především pro bezpečné zajištění objektů a místností.

• Součástí jsou i zárubně v provedení k zazdění (za příplatek k ukotvení ocelovými šrouby).

• Trezorové dveře jsou vybaveny mechanickým kombinačním zámkem s třístranným rozvorovým mechanismem ovládaným klikou.

• Na přání možnost oboustranného otevírání, nouzového otevírání a zamykání zevnitř.

• Dveře lze vyrobit i v bezpečnostní třídě III.

• Barevné provedení: RAL 9002 (šedobílá) nebo RAL 9005 (černá).

 

Certifikace dveří:

• Certifikát dle normy ČSN EN 1143-1+A1 pro bezpečnostní třídu I.

• Certifikát NBÚ ověřující způsobilost technického prostředku typu 3 (TAJNÉ).

• Trezorové dveře lze vyrobit v provedení splňující požadavky ČSN EN 1522 a ČSN EN 1523 pro zařazení do třídy balistické odolnosti FB4.

Zařazeno v kategoriích

Hmotnost
180 kg
Výška
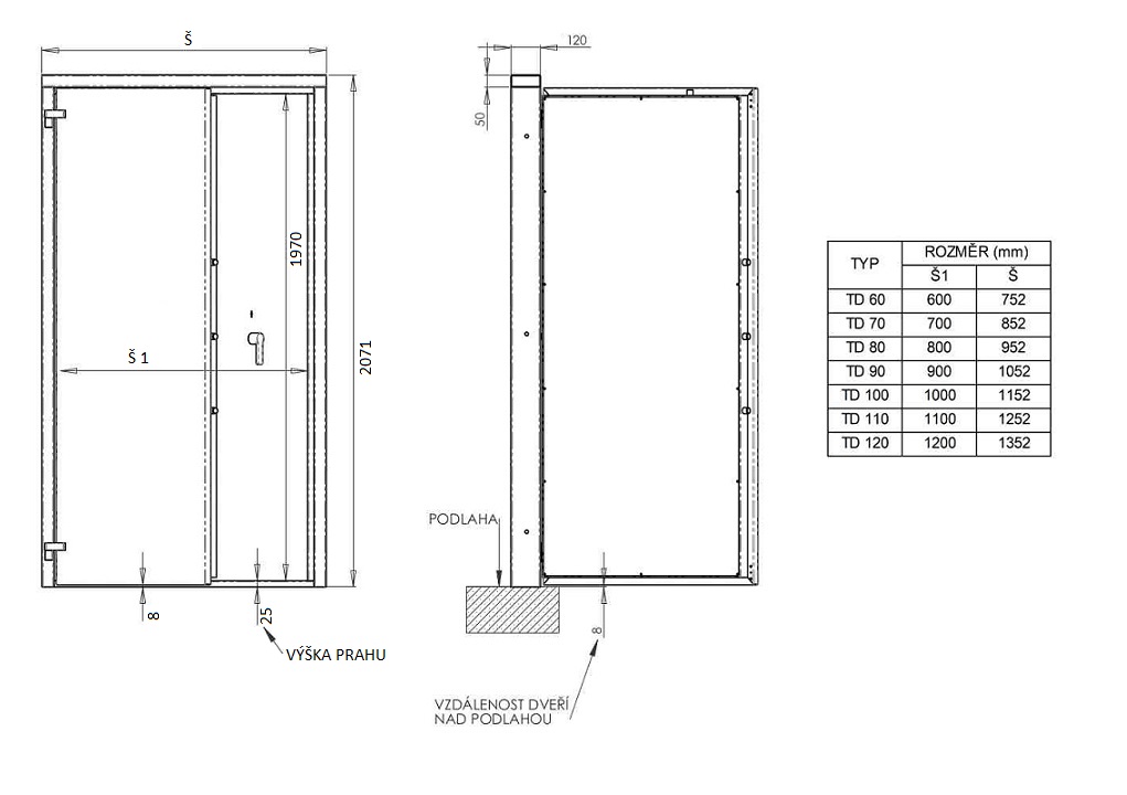
2065 mm
Šířka
840 mm
Hloubka
150 mm
Výška - vnitřní rozměr
1970 mm
Šířka - vnitřní rozměr
700 mm
Hloubka - vnitřní rozměr
150 mm
Bezpečnostní třída
1
Značka
T-Safe 


© Servisní partner FAB Brno, Novelo 91 s.r.o.