•  

Hydraulický válec Z321/50t

Kód produktu: NA017423
Kód dodavatele: 123-318025-011
EAN: 8590702170207
Na objednávku
11 086,02 CZK s DPH / ks
9 162,00 CZK bez DPH
MJ: ks

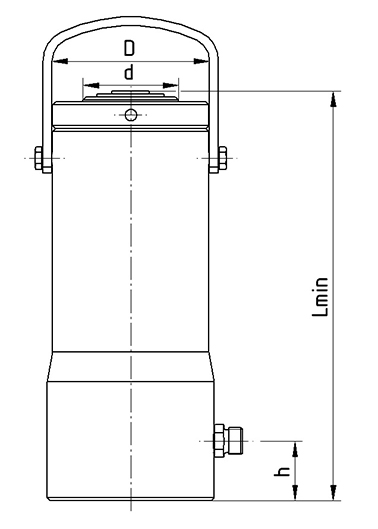
Hydraulický válec Brano Z321 – 4 nosnosti

Použití hydraulického válce

Slouží jako mobilní zvedák pro zvedání, rozpínání a manipulaci s břemeny velkých hmotností (až do 200 t) nejrůznějších druhů. Zdrojem tlakové energie je samostatné ruční čerpadlo

• pro montážní práce všeho druhu zejména ve stavebnictví (stavby mostů, ocelových konstrukcí apod.)
• zvláště vhodné pro využití v omezených prostorech
• možnost používání také v prostředí s nebezpečím výbuchu (označení NEXP)

 

Vlastnosti hydraulického válce

• robustní, jednoduchá konstrukce
• spolehlivě udrží břemeno v libovolné poloze
• minimální nároky na údržbu
• výrobek neobsahuje zpětný ventil.

Zařazeno v kategoriích

Hmotnost
40 kg
EAN
8590702170207
Nosnost
50 t
Délka zdvihu
145 mm
Značka
BRANO 


© Servisní partner FAB Brno, Novelo 91 s.r.o.